portfolio

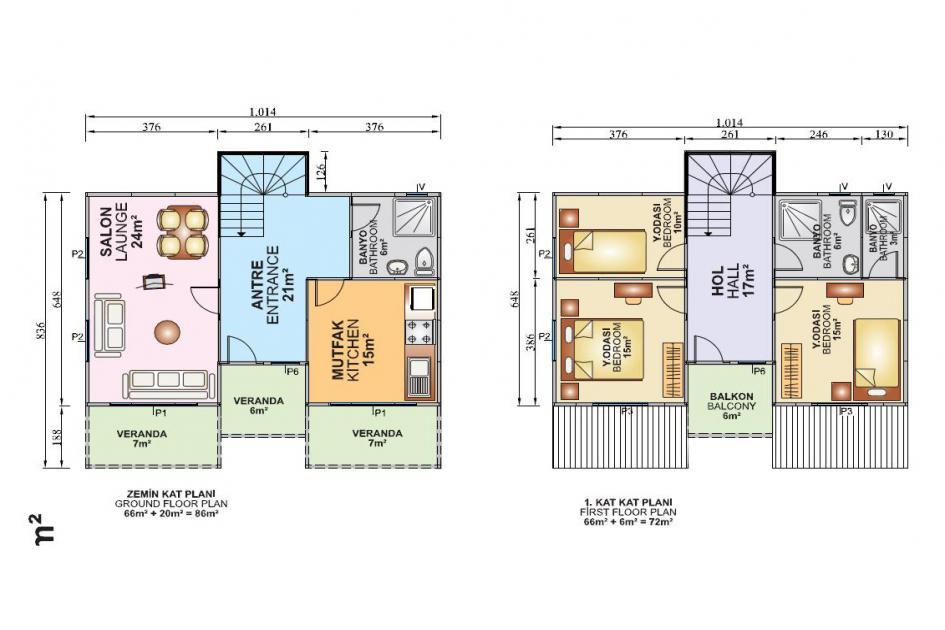
150m2 Dubleks Prefabrik

Dubleks Prefabrik Ev 150 m² prefabrik ev modelleri arasında fiyat ve kalite açısından en uygun modeller arasında görülmektedir.

  • Bina malzemesinin temini ve montajı.
  • Boya badana işleri.
  • Tüm iç ve dış kapıların takılması.
  • Pencerelerin plastik doğrama ile çift camlı olarak takılması.
  • Elektrik tesisatı ve armatürleri uygulaması fiyata dahildir.